Et si votre maison vous offrait enfin l’espace dont vous avez besoin ?
Créer une extension ou transformer un garage en pièce de vie est une solution intelligente pour gagner des mètres carrés sans déménager. Chambre, bureau, salle de bains, salon… cet agrandissement permet d’adapter votre logement à vos besoins actuels et futurs, tout en valorisant votre patrimoine.
Avec le temps ou face à une perte de mobilité, une maison qui n’a pas été pensée pour l’accessibilité peut vite devenir contraignante :
- Chambres ou salle de bains situées uniquement à l’étage.
- Espaces de circulation trop étroits.
- Manque d’autonomie et risque accru de chutes.
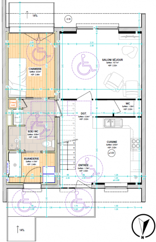
Dans ces situations, l’agrandissement du logement par transformation du garage ou une extension représente une alternative idéale : créer un espace de plain-pied, fonctionnel et confortable, pensé pour le quotidien des seniors et des personnes à mobilité réduite.
Avec plus de 20 ans d’expérience en maîtrise d’œuvre au sein d’une première société, nous vous accompagnons de A à Z :
- Étude personnalisée et conseils adaptés à votre situation.
- Conception des plans et dépôt des autorisations administratives.
- Sélection des matériaux et des aménagements les mieux adaptés.
- Suivi de chantier et coordination travaux jusqu’à la livraison.
Vous bénéficiez d’un interlocuteur unique et d’une prise en charge complète pour un projet en toute sérénité.
Agrandir sa maison présente de nombreux atouts :
- Espace supplémentaire sans déménagement : vous adaptez votre maison à vos besoins sans changer de cadre de vie.
- Plain-pied accessible : création d’une chambre, d’une salle de bains ou d’un séjour facilement accessible.
- Valorisation de votre logement : augmentation de la surface habitable et amélioration du confort global.
- Adaptation aux besoins futurs : idéal pour anticiper le vieillissement ou l’évolution des besoins liés au handicap.
Parce qu’un projet d’adaptation doit rester accessible financièrement, plusieurs dispositifs existent :
- MaPrimeAdapt’ : jusqu’à 70 % du montant des travaux selon vos ressources.
- Prestation de Compensation du Handicap (PCH) : aide attribuée par la MDPH pour les personnes en situation de handicap.
- Crédit d’impôt accessibilité : 25 % des dépenses pour certains aménagements.
- Aides locales : régions, départements et communes proposent parfois des financements complémentaires.
Grâce à nos partenaires certifiés, nous vous guidons dans vos démarches pour identifier et obtenir les aides auxquelles vous êtes éligible.
